杰图管道非开挖修复模块网络会议顺利召开

杰图软件公司管线产品新功能模块——管道非开挖修复网络分享会于2021年9月3日下午顺利进行。会议由公司市场部总监孙丹主持,销售经理吴文轩进行讲解展示。

本次会议采用网络视频的方式主要从开发背景、市场需求、软件特点等几个方面,通过实例演示对杰图管道非开挖修复模块的主要功能:识别勘测图、导入缺陷数据、修复规则定义、修复方案匹配、内衬厚度计算、清淤修复纵断绘制、修复数量统计等进行了分享。会议之后,客户热情度高,咨询客户多。已经有多家客户进行了详细了解和勘测资料对接,通过对软件数据模板的定制均可很好的适应。

下面我们来分享几个比较典型的具体案例。


珠海案例:

通过设置识别缺陷标记和缺陷标注进行勘测资料识别



平面图进行图纸数据识别



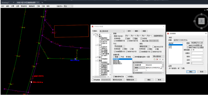
重庆案例:

通过软件中的识别勘测图,将图纸中的管线和井数据以及缺陷信息一键读取。




识别读取后,缺陷信息即可快速查询并自动标注。



广州案例

通过设置物探表导入功能,进行表格-CAD转化,生成平面图与缺陷标记




株洲案例:

通过设置物探表导入功能,进行表格-CAD转化,生成平面图与缺陷标记



非开挖修复作为一种新兴工艺,具有对周边环境影响小在保障工程周边管线、构(建)筑物安全,保障交通畅通方面具有明显优势。后续必将在城市管网修复工作中得到越来越广泛的应用!杰图软件公司作为国内管道工程设计软件的重要开发商,也将在此领域作出应有的贡献!笃行致远 砥砺奋进!杰图人将不负众望持续为您提供优质服务与精品软件!



在线客服
 
 
——————
010  -67112305(北京)
0379-64363628(洛阳)
周一至周五(9:00-18:00)

热线电话